Totnes Hillside Garden

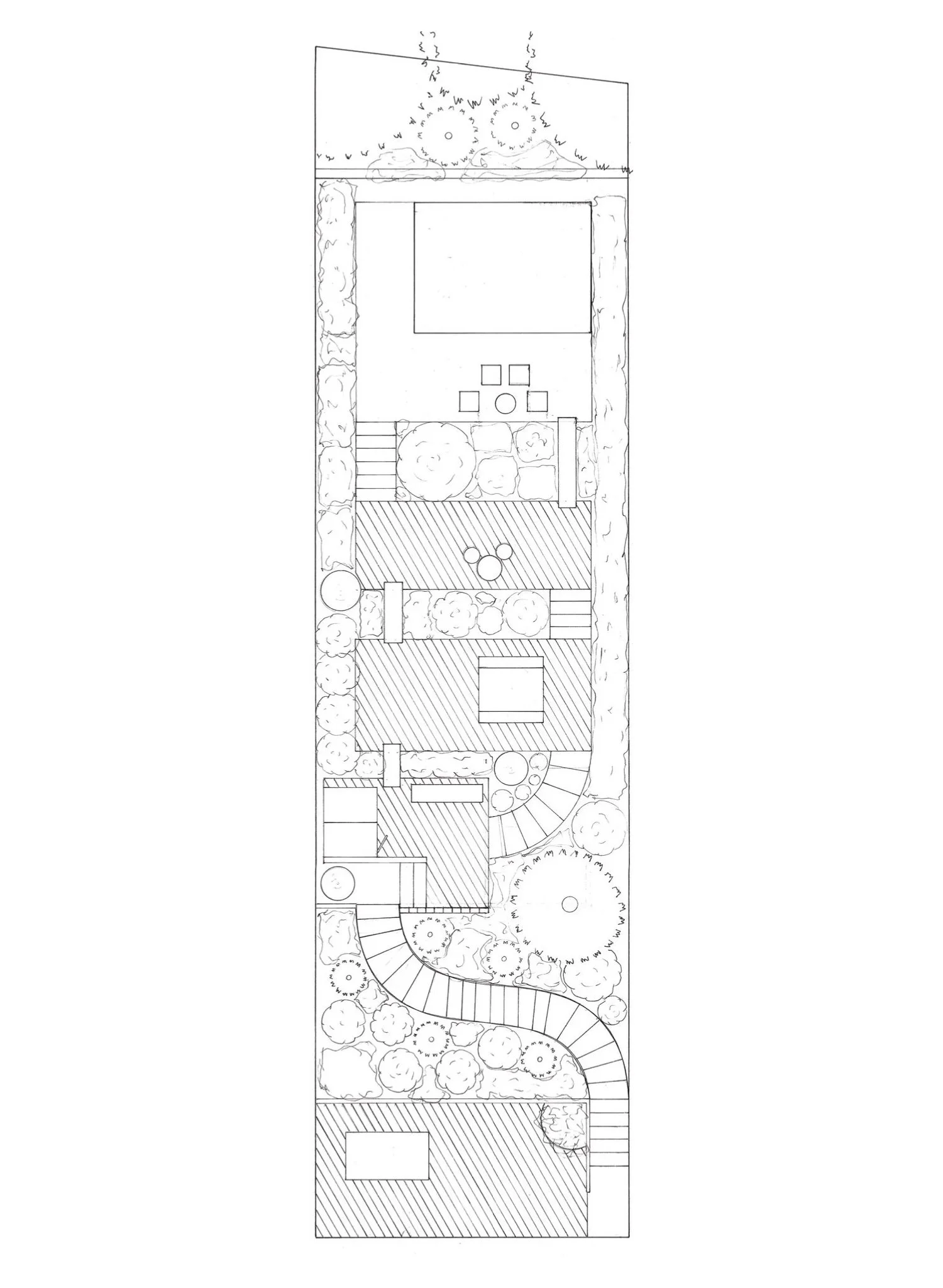
The brief for this garden was to create a welcoming family space that could be enjoyed year‑round and also incorporate a functional studio for our client. The main challenge was that the garden sits on an incredibly steep slope and remains in shade for many months of the year, so we needed to design with both gradient and light limits in mind.

The design divides the garden into a series of sheltered tiers, linked by playful slides and carefully sited stairs that make moving between levels easy and fun. The stairs are threaded through the spaces and weave past multi‑stem trees, creating lush, tranquil areas and secluded pockets where the whole family can relax, play and work in comfort.

Photographs by Matthias Peters

Next
Next

Exe Valley Garden